2.614,90 €*
% 3.248,00 €* (19%/633,10 € gespart)inkl. MwSt. z.T. zzgl. Versandkosten
bestellbar
Lieferzeit ca.: 3 - 5 Werktage
Komplett-Set aus Rangierhilfe und Power Set, siehe auch Registerkarte "Setinhalt". Auch weitere Komplettsets / Power Sets hier im Shop erhältlich.
![]() |
- Ob Handkurbel oder Akkuschrauber - einfach an- und abschwenken.
- kraftvoller Antrieb für jeden Einsatz
- Serienmäßig mit der einfachen easydriver-Funk-Fernbedienung
- einfach leicht, smart und kompakt
- geringes Systemgewicht
- minimaler Verlust an Bodenfreiheit
- einfach per Akkuschrauber oder Handkurbel an- und abschwenken
- beste Traktion für Sicherheit bei Steigungen, nassem Gras, Schlamm und unwegsamem Gelände
- sanftes Anfahren und Anhalten durch Softstart und Softstopp
- schonend sanfte Kurven fahren (mit reduzierter Belastung am Chassis) oder einfach mal schnell auf der Stelle drehen
- Einfach clever - die spielreduzierte Anschwenkführung für eine ideale Kraftumsetzung. Der einzigartige Anschwenkmechanismus wird in Hochleistungs-Gleitlagern geführt.
- Einfach einzigartig - der easydriver-Korrosionsschutz. Statt Korrosion nur abzudecken, sorgt das easydriver-Gehäuse aus Hightech-Material einfach dafür, dass kein Rost entsteht. Für bleibenden Wert.
- Einfach stark - Easydriver active
- Mit 4 Motoren für Tandem / Doppelachser
- Nur für L-Rahmen (im Standard-Lieferumfang). Adapter für U-Rahmen REICH Easydriver Artikelnummer 227-2247u siehe „Zubehör“.
- Made in Germany
- Mit Allgemeiner Betriebserlaubnis (ABE). Keine TÜV-Vorführung nach Einbau.
- Geprüftes System
Das Komplettset
Dieses Angebot enthält neben der Rangierhilfe noch das Power Set - die genauen Bestandteile des Sets sehen Sie hier auf dieser Seite unter dem Reiter "Setinhalt". Für die meisten Wohnwagen brauchen Sie nicht mehr als ein solches Set, weiteres Zubehör für den reinen Betrieb wird nicht benötigt.
Übersicht über die PowerSets:
1. Sets YELLOW: Bewährte Sets mit OPTIMA Yellow Top Antriebsbatterien in 3 Größen, sprich Kapazitäten (S, M und L).
2. Sets GREEN: mit Lithium Ionen Akkus in verschiedenen Größen, sprich Kapazitäten, nämlich S, M, L usw. und von verschiedenen Marken.
Sie finden in jeder Artikelbeschreibung bei jedem Mover oder Mover-Set unter "Erhältlich in" alle diese Sets. Und in jeder Artikelbeschreibung jedes Sets finden Sie im Reiter "Setinhalt", was genau das Set umfasst.
Adapter, Fernbedienungen und weiteres Zubehör oder Ersatzteile
Adapter, Fernbedienungen und weiteres Zubehör oder Ersatzteile
Hier finden Sie noch spezielleres Zubehör und Ersatzteile: Zubehör Rangiersysteme.
Zum Beispiel Wohnwagen-Adapter, welche in Ausnahmefällen benötigt werden.
Oder Fernbedienungen, wenn Ihnen eine verloren geht oder Sie von vorne herein eine Zusatzfernbedienung möchten.
FAQ - Häufig gestellte Fragen
Hier unsere Rangierhilfen Beratung
| Gewicht (kg): | 94,5 |
|---|---|
| Allgemeine Betriebserlaubnis (ABE): | ja |
| Anlegen der Antriebswalzen: | manuell |
| Anzeige: | ja. Fehler auf Steuergerät. Überlast auch auf Fernbedienung. |
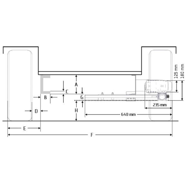
| Bodenfreiheit: | 5-8 cm Verlust (Standardmontage) |
| Breite der Achse (von - bis in mm): | 1800-2500 |
| Breite der Reifen max. (mm): | ∞ |
| Eignung: | Doppelachser |
| Geschwindigkeit: | ca. 0.6 km/h (abhängig von Gewicht - Steigung - Reifengröße) |
| Gewicht Anhänger max. zulässig (kg): | 2800 |
| Gewicht max. (kg) bei Steigung (%): | 2.800 / 12 |
| Kapazität (Ah): | 75 |
| Lieferumfang: | Komplettset - Rangierhilfe plus Power Set (siehe Abschnitt "Setinhalt") |
| Made in: | Deutschland |
| Marke: | EASYDRIVER |
| Set: | Komplettsets Yellow Optima-Akku |
| Soft-Start/Stopp: | ja |
| Stromaufnahme: | 35 Amp. (mittlere) / 120 Amp. (max.) |
| Stromversorgung: | 12 V |
| Typ / Art: | halb-automatisch |
| TÜV und/oder GS geprüft: | ja |
| Zusatzhinweis: | Spezielle Antriebsbatterie im Set! |

Reich GmbH
Ahornweg 37
35713 Eschenburg
info@reich-web.com



















